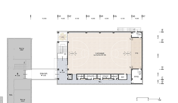
공릉초 다목적강당
2020. 10. 18. 17:28ㆍ계획
설계공모 2등안 + BHJ Architects




알루미늄 펀칭패널의 모듈화, 오픈형 연결브릿지와 그에 연속되는 회랑식 복도로 인한 평면의 최적화, 덕트형 공조설비 등에 대한 탐구와 시도





'계획' 카테고리의 다른 글
| 의왕 근린생활시설 + 다가구주택 (0) | 2020.12.17 |
|---|---|
| 양평 단독주택_2 (0) | 2020.12.17 |
| 수능리 주택 (0) | 2020.12.17 |
| 중동 1150.1 근린생활시설 (0) | 2020.12.17 |
| 양명초 체육관+급식시설 설계공모 (0) | 2020.10.18 |