양명초 체육관+급식시설 설계공모
2020. 10. 18. 17:37ㆍ계획
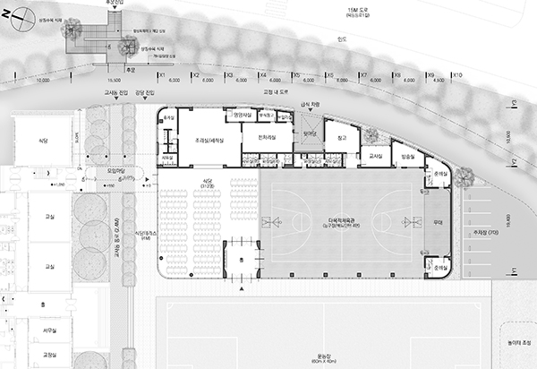
설계공모 당선




교육청에서 요구하는 프로그램은 1층에 식당을 두고 2층이 다목적강당이 되는 것이었지만, 어떻게든 1층이 되어야 한다고 생각했고 그것에 집중했다.








'계획' 카테고리의 다른 글
| 의왕 근린생활시설 + 다가구주택 (0) | 2020.12.17 |
|---|---|
| 양평 단독주택_2 (0) | 2020.12.17 |
| 수능리 주택 (0) | 2020.12.17 |
| 중동 1150.1 근린생활시설 (0) | 2020.12.17 |
| 공릉초 다목적강당 (0) | 2020.10.18 |